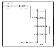
Implementing Files (see Fig. 6.13)

2004-05-25